Modelo Chapera

Barrio Alto , Omar Torrijos, San Miguelito, Panamá

Casa 386m² 3 Recámaras 2 Estacionamientos
En construcción
Entrega: 2° trimestre 2023
Recámaras

3

Baños

3

Antigüedad

A Estrenar

Estacionamientos

2

m² Cubierta

386.00

m² Total

386.00

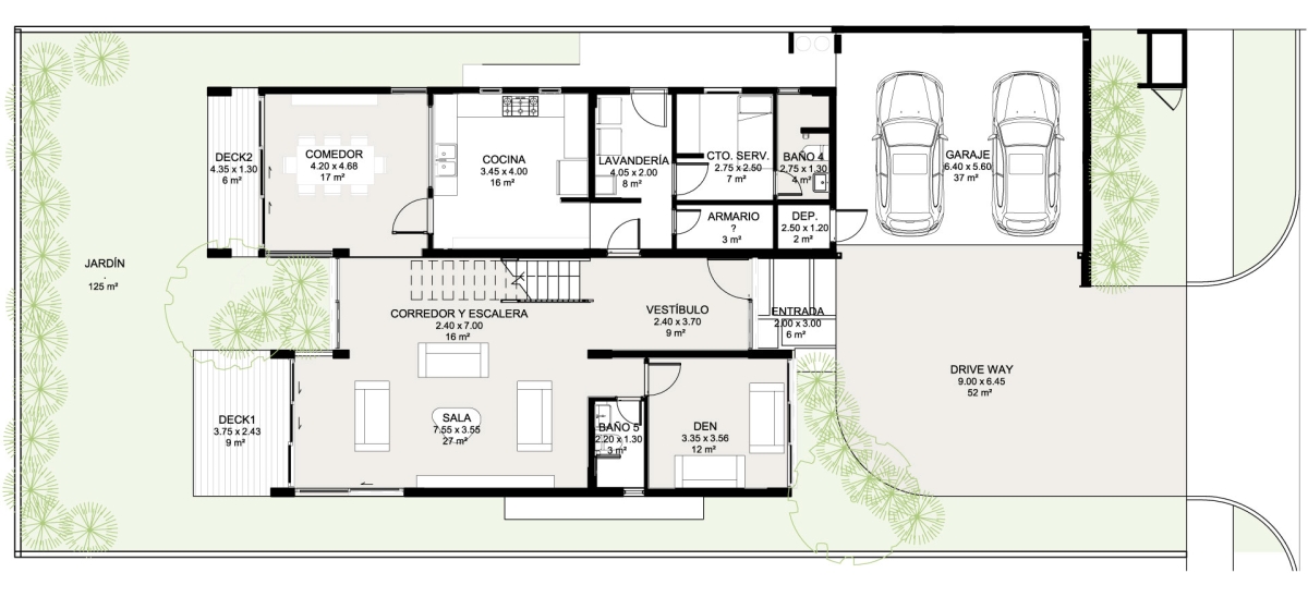
PLANTA BAJA
Estacionamiento cerrado con drive way para 2 autos con puerta a control
Espaciosa sala con acceso al jardín
Comedor independiente y salida al patio
Estudio con baño de visitas completo
Amplia cocina
Lavandería con armario
Cuarto y baño de servicio doméstico

PLANTA ALTA
Recámara principal con balcón, walk-in closet y amplio baño

PLANTA BAJA
Estacionamiento cerrado con drive way para 2 autos con puerta a control
Espaciosa sala con acceso al jardín
Comedor independiente y salida al patio
Estudio con baño de visitas completo
Amplia cocina
Lavandería con armario
Cuarto y baño de servicio doméstico

PLANTA ALTA
Recámara principal con balcón, walk-in closet y amplio baño
Dos (2) recámaras secundarias cada una con baño y closet
Sala Familiar con semi-balcón
Linen closet (opcional)

Planos

Video

360° Virtual

Conoce los alrededores del inmueble

No olvides ingresar tu correo
Ingresá tu nombre
Ingresá tu teléfono

Al enviar estás aceptando los Descargo de Responsabiilidad