Modelo Perla

Barrio Alto , Omar Torrijos, San Miguelito, Panamá

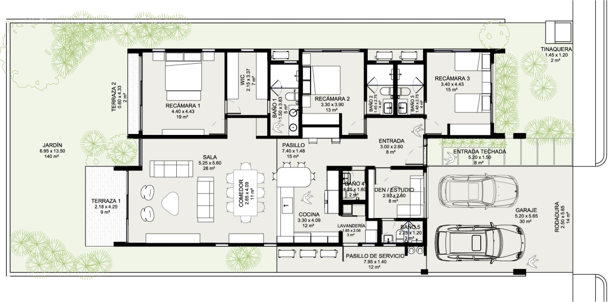
Casa 258m² 3 Recámaras 2 Estacionamientos
En construcción
Entrega: 2° trimestre 2023
Recámaras

3

Baños

3

Antigüedad

A Estrenar

Estacionamientos

2

m² Cubierta

258.00

m² Total

258.00

Casa en el área de Barrio Alto Panamá. Modelo Perla: Estacionamientos para 2 autos Sala y comedor con vistas al patio Medio baño de visitas Cocina semi-abierta con desayunador Lavandería Estudio o CBE Recámara principal con walk-in closet y amplio baño Dos (2) recámaras secundarias cada una con baño y closet Linen closet (opcional) Altura d

Casa en el área de Barrio Alto Panamá. Modelo Perla: Estacionamientos para 2 autos Sala y comedor con vistas al patio Medio baño de visitas Cocina semi-abierta con desayunador Lavandería Estudio o CBE Recámara principal con walk-in closet y amplio baño Dos (2) recámaras secundarias cada una con baño y closet Linen closet (opcional) Altura de 4.20 metros en la sala comedor Terraza Abierta

Planos

Video

360° Virtual

Conoce los alrededores del inmueble

No olvides ingresar tu correo
Ingresá tu nombre
Ingresá tu teléfono

Al enviar estás aceptando los Descargo de Responsabiilidad