Casas Tipo Dúplex desde 318 m2 y lotes desde 331 m2

Santa María Country Club, Juan Díaz, Panamá

Casa 331m² 3 Recámaras 2 Estacionamientos
En construcción
Entrega: 1° trimestre 2023
Recámaras

3

Baños

3

Antigüedad

A Estrenar

Estacionamientos

2

m² Cubierta

318.00

m² Total

331.00

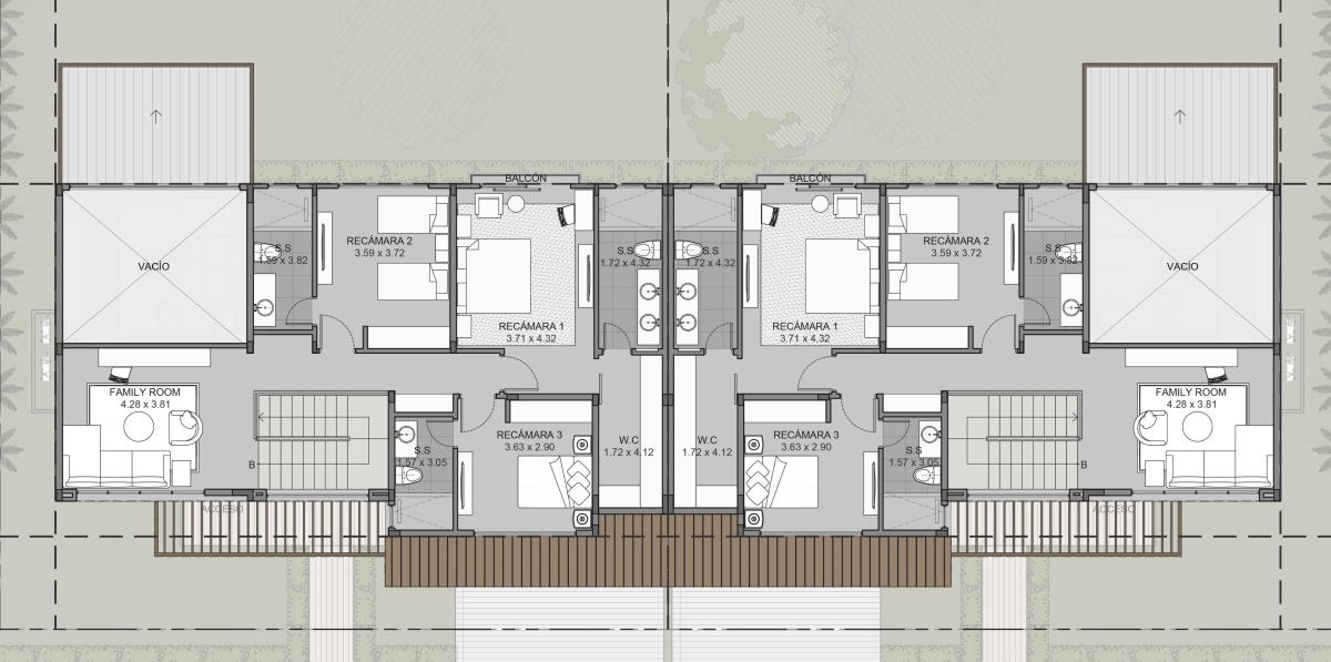
Características especificas de la vivienda:
Actualmente en esta etapa de proyección se venden casas dúplex desde 318 m2 y lotes desde 331 m2, según disponibilidad de entrega y del momento. La primera fase con un fecha de entrega para diciembre 2022. Estas casas cuentan con tres (3) recámaras cada una con su baño, den y sala, comedor, cocina,

Características especificas de la vivienda:
Actualmente en esta etapa de proyección se venden casas dúplex desde 318 m2 y lotes desde 331 m2, según disponibilidad de entrega y del momento. La primera fase con un fecha de entrega para diciembre 2022. Estas casas cuentan con tres (3) recámaras cada una con su baño, den y sala, comedor, cocina, sala familiar, lavandería, cuarto y baño de servicio, un medio (½) baño, en su parte abierta con su terraza y patio colindante, deposito, mas dos (2) estacionamientos techados. Se cuenta con la planta eléctrica total.
La vivienda es de dos niveles o dos pisos, planta baja y planta alta. Cuenta con diferentes configuraciones o anexos que se pueden incluir según necesidades.
Solo Fase 1, ver disponibilidad del tamaño del lote.

Planos

Video

360° Virtual

Conoce los alrededores del inmueble

No olvides ingresar tu correo
Ingresá tu nombre
Ingresá tu teléfono

Al enviar estás aceptando los Descargo de Responsabiilidad