166
2 a 3
2
1
83 a 100
83 a 100
Vivir e invertir en una de los lugares más deseados y con alta plusvalía en la Republica de Panamá.
AURUM eleva el estándar residencial de Costa del Este con un diseño contemporáneo, amenidades distribuidas en múltiples niveles y un programa de unidades optimizado para vivir con estilo o generar renta atractiva. Un proyecto de 32 niveles
Vivir e invertir en una de los lugares más deseados y con alta plusvalía en la Republica de Panamá.
AURUM eleva el estándar residencial de Costa del Este con un diseño contemporáneo, amenidades distribuidas en múltiples niveles y un programa de unidades optimizado para vivir con estilo o generar renta atractiva. Un proyecto de 32 niveles con seguridad de vanguardia, movilidad eficiente y servicios tipo “full service” pensados para la vida urbana actual.
Valor diferencial
Ubicación prime en Costa del Este: demanda sostenida de arrendamiento corporativo y alta plusvalía.
Formato de unidades eficiente (83, 88.26 y 100 m²) ideal para uso propio o inversión.
Amenidades en altura (rooftop y niveles intermedios): experiencias wellness, deportivas y sociales que incrementan la deseabilidad y el ticket de renta.
Operación confiable: generadores, doble reserva de agua, control y video-vigilancia centralizada.
Amenidades
Planta baja: Lobby, Zen Garden y Zen Terrace, Club House, muro de escalada, áreas verdes y administrativas, locales comerciales.
Niveles 50 y 100: Fitness Center, Pilates & Yoga Studio, sauna & spa, massage studio, beauty station, cinema, kids club, game room y private lounge; Padel Zone.
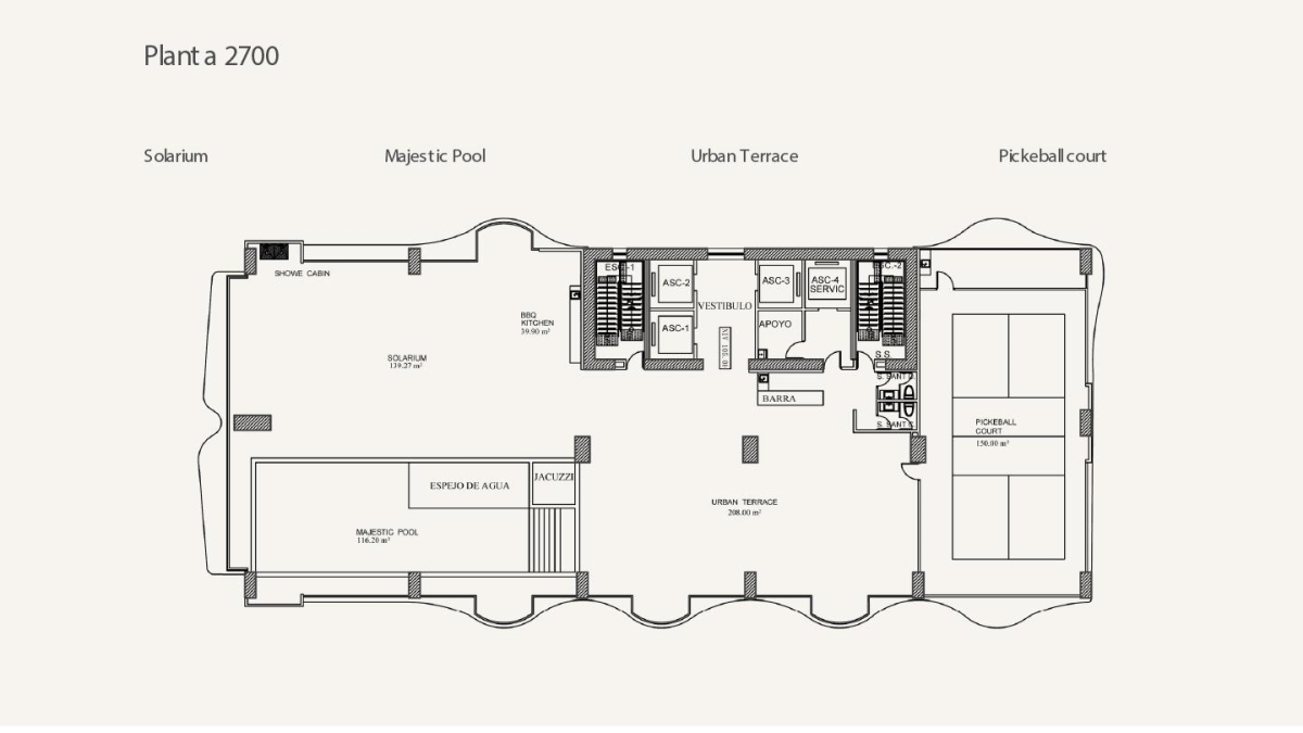
Nivel 2700: Solarium, Majestic Pool, jacuzzi, BBQ kitchen, Urban Terrace, Pickleball Court y Pet Station.
Nivel 2800 (Rooftop): Skyline Terrace con vistas 360°.
Apartamentos
83 m² (Tipologías C, D, E, H): sala, comedor, cocina, lavandería, recámaras, baños, walk-in closet y balcón.
88.26 m² (Tipologías A, B): sala-comedor y cocina integradas, lavandería, recámaras, baños y balcón.
100 m² (Tipologías F, G): sala-comedor y cocina integradas, lavandería, recámaras, baños y balcón.
Ficha técnica
Total: 32 niveles.
Residencial: 21 niveles (8 unidades por piso del nivel 600 al 2500; nivel 2600 con 6 unidades).
Unidades: 166 (41 de 100 m² | 42 de 88.26 m² | 83 de 83 m²).
Estacionamientos: 253 (1 por unidad).
Circulaciones: 3 elevadores de alta velocidad (cabinas de techo alto) + 1 elevador de servicio.
Sistemas: generadores eléctricos, sistema contra incendios, agua potable y 2 tanques de reserva.
Seguridad: video-vigilancia en áreas comunes con centro de monitoreo.
Servicios: Package Delivery Center, Service Concierge, estaciones de carga para vehículos eléctricos, Wi-Fi en lobby y áreas sociales, Pet-Friendly, estación de bicicletas y scooters.
Mantenimiento: US$ 2.50/m².
Locales comerciales: 2 (122.00 m² y 109.10 m²).








© 2021 Copyright Realty Panama Group